宇都宮市東部に位置する区画整理が終了した、住宅地に計画された中庭を持つ都市型住宅である。
北側には、低層の集合住宅が建ち、南側、西側には2階建ての専用住宅が建ち並び、東側には、幅員6.0mの市道が位置する。
東側道路から直接乗り入れ可能な駐車場(駐車台数4台)を敷地の中に取り込み。西側敷地には手入れされた庭があるため、その延長としてバスコート設けた。バスコートと中庭の間に位置する和室は二面開放することにより外部に浮かぶ和室をイメージした。
定年を間じかに迎えたご夫婦とキャリアのある2人の子供という家族構成で、将来は二世帯住宅としての住まい方にも対応できるプランである。
主体構造は木造で計画しているが、ポーチ部分には鉄筋コンクリート打放しの壁を設け、外構と主体構造を一体化している。東面ファサードは、メタリックなガルバリウム鋼板とオーガニックなモルタル吹付仕上げ、そして、コンクリート打放し仕上げで構成される。
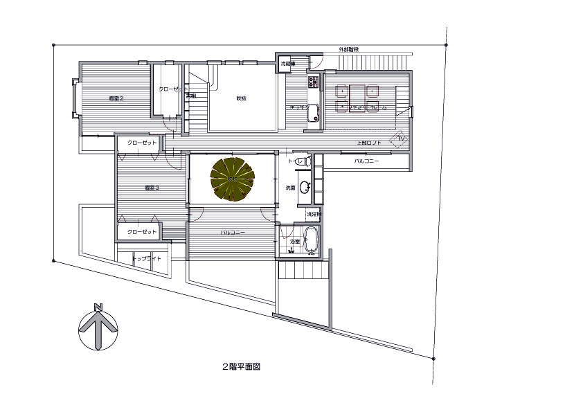
中央のコートを生活の中心に置くことにより、開放的で動的な、北側1階の吹抜を持つファミリールームとそれとは、対照的である、静的な『和』の空間を持つ客間、バスコートと中庭に面する家族の利用を目的とする和室を構成することが出来た。中庭の東側には、家族全員が利用できる書斎コーナーを設け、キッチンに隣接させることにより、家事コーナーとしても利用可能である。
2階には2つの個室を有し、東側には、家族だけが気兼ねなく、くつろげる2番目のファミリールームを持つ、キッチンは、駐車場より直接アクセス可能な外部階段を設けている浴室に面したバルコニーは、リフレッシュを目的とした、外部空間を持ち、南側境界より距離を設けプライバシーの保護を考慮している。
















